The best partner to outsource bim services

With our expertise and advanced tools, we ensure that your projects are handled with precision and efficiency. Discover how our services can benefit your next project.

Design Authoring

Transform your ideas into detailed, accurate models with our Design Authoring services. Our team creates comprehensive BIM models that facilitate seamless collaboration and ensure precise project execution.

Design Authoring

Documentation

Ensure every detail is meticulously recorded with our Documentation services. We provide thorough and precise documentation that supports project planning, execution, and management, keeping all stakeholders informed and aligned.

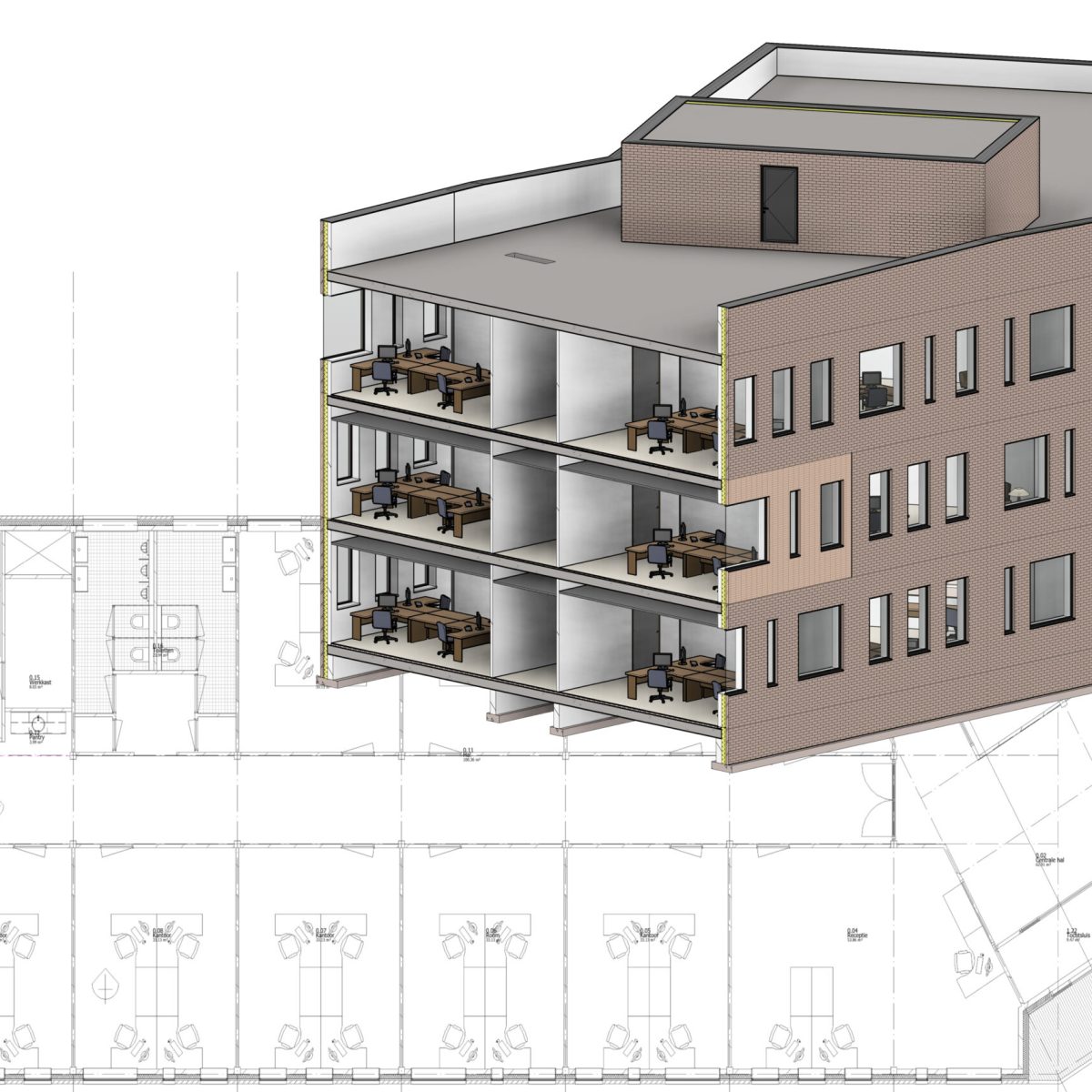
A building in 3D on a construction drawing. In the top left corner is an empty space for your logo, text or something else.

Asset Information Modeling

Manage and maintain your assets efficiently with our Asset Information Modeling services. We create detailed models that provide valuable insights into your assets, supporting effective decision-making and long-term maintenance strategies.

AIM

Coordination and Collaboration

Manage and maintain your assets efficiently with our Asset Information Modeling services. We create detailed models that provide valuable insights into your assets, supporting effective decision-making and long-term maintenance strategies.

Coordination

Existing Condition Modeling

Manage and maintain your assets efficiently with our Asset Information Modeling services. We create detailed models that provide valuable insights into your assets, supporting effective decision-making and long-term maintenance strategies.

Point Cloud